SAVE VTR 500 R 1670W

На складе: много
Компактный корпус
Встроенный нагреватель
Сенсорный пульт управления
Новинка
Арт. RU488830
Типоразмер
150
325
500
700
-
Мощность
1000W
1670W
3000W
-
584 600 руб.

Описание

Модель с роторным рекуператором предназначена для вертикального, потолочного или напольного монтажа и сочетает в себе передовые технологии, энергоэффективность и простоту эксплуатации.

  • Высокая эффективность. Ротор с КПД до 85% обеспечивает максимальное восстановление тепла, снижая затраты на отопление. Энергоэффективные EC-вентиляторы с плавной регулировкой скорости работы. Встроенный электрический нагреватель для комфортного использования в холодное время года.
  • Умное управление. Сенсорный цветной пульт управления для удобного контроля параметров системы. Возможность удаленного управления через мобильное приложение. Голосовой помощник Алиса и интеграция в систему диспетчеризации SCADA.
  • Компактность и надежность. Облегчённая конструкция с самонесущим стальным корпусом из стали толщиной 0,8 мм (Z275) с двусторонним полимерным покрытием для защиты от коррозии. Тепло- и звукоизоляция из минеральной ваты толщиной 30 мм (класс НГ, плотность 65 кг/м³).
  • Удобство обслуживания. Полный доступ ко всем компонентам для быстрого и простого обслуживания. Интегрированная система безопасности и защиты от несанкционированного доступа.

Установки изготавливаются на российском заводе Системэйр.


Технические характеристики

Агрегат
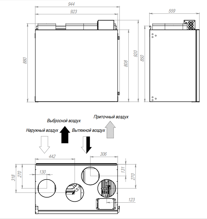
Расход воздуха при 100 Па660 м³/ч
Напряжение/Частота230/50 В/Гц
Фазность1~
Рекомендуемый предохранитель16 А
Электрическая мощность2 кВт
Регулирование скоростиПлавное (от 40% до 100%)
Воздушный фильтр притока и вытяжкиМ5
Звуковая мощность (LWA) 54 дБ(А)
Диаметр воздуховодов200 мм
Степень защитыIP 23
Габариты (ВхШхГ)850х923х559 мм
Вес81 кг
Вентиляторы (приточный, вытяжной)
Напряжение230 В
Фазность1~
Ток (max)8,7 А
Входная мощность164 Вт
Скорость вращения рабочего колеса4375 об/мин
Роторный рекуператор
Эффективность~80 %
Электрический нагреватель
Мощность1,67 кВт
Условия эксплуатации*
Температура окружающей средыот +5 °С до +40 °С
Температура обрабатываемого воздухаот -40 °С до +40 °С
*Не предназначены для подключения вытяжки из кухни, местных отсосов и для обеспечения вентиляции во влажных помещениях (бассейны, душевые комнаты)
Панель управления
Экран Цветной сенсорный ёмкостной, 2.8"
Габариты (ДхШхГ), мм85х85х20
Степень защитыIP 20
Встроенные датчикиВстроенный в панель датчик температуры и влажности
Wi-Fi модульВстроенный в панель

Производительность

Производительность

Габариты

Габариты
Габариты
Габариты

Документация

Брошюра SAVE VTR 2026.pdf
Руководство по монтажу, обслуживанию и эксплуатации SAVE VTR, версия 1.pdf
Руководство по монтажу, обслуживанию и эксплуатации SAVE VTR (вер.2).pdf
Скачать все
Скачать в PDF
С этим товаром покупают
Шумоглушители LDCV 900 мм
Шумоглушители LDCV 900 мм
Хомуты FKV
Хомуты FKV
Круглые нагреватели Sysimple TCB
Круглые нагреватели Sysimple TCB
EFFC, вытяжные воздушные клапаны
EFFC, вытяжные воздушные клапаны
EFFL, вытяжные воздушные клапаны
EFFL, вытяжные воздушные клапаны
ENK, пластиковые воздушные клапаны
ENK, пластиковые воздушные клапаны
PTK-125, приточные клапаны
PTK-125, приточные клапаны
Главная
Каталог
Корзина
Войти
Этот сайт использует файлы cookies и сервисы сбора технических данных посетителей